物件詳細情報
| 交通 |
JR中央線(東京~塩尻) / 吉祥寺駅 徒歩3分 |
| その他交通 |
JR総武線 / 吉祥寺駅 徒歩3分 京王井の頭線 / 吉祥寺駅 徒歩5分
|
| 所在地 |
東京都武蔵野市吉祥寺本町1丁目 |
| 物件種目 |
貸マンション |
| 賃料 |
34.5万円 |
管理費等 |
15,000円 |
| 敷金 / 保証金 |
なし/なし |
礼金 |
1ヶ月 |
| 敷引 |
- |
保証金償却 |
解約時1ヶ月 |
| その他一時金 |
契約事務手数料:11,000円、 アクト安心ライフ24(2年毎更新必須):16,500円、 除菌消臭代:11,000円、 鍵交換代等:33,000円~ |
保険等 |
加入要 / 2年間 20,000円 |
| 維持費等 |
- |
| 建物名・部屋番号 |
グローリオ吉祥寺本町 903 |
| 設備 |
モニタ付オートロック 宅配BOX システムキッチン ウォークインクローゼット エアコン2台以上 バイク置き場 収納スペース バス・トイレ別室 室内洗濯機置場 シューズボックス オートロック モニタ付インターホン 3口以上コンロ グリル エレベーター2基以上 エレベーター 浴室乾燥機 洗面所独立 洗面所 シャワー 洗濯機置場 全居室フローリング フローリング 都市ガス エアコン バルコニー 駐輪場 光ファイバー CATVインターネット CS BS端子 温水洗浄便座 トイレ |
| 備考 |
賃貸保証等:加入要 初回契約時:50%、月額:1.2%、外国籍の方(ジェイリースの場合):初回保証料100%・月額保証料1.2% バルコニー: あり 解約予告2ヶ月前、1年未満解約違約金(賃料+管理費1ヶ月分)、更新事務手数料(個人2万円+税/法人0.5ヶ月+税)、退去時:室内清掃費・原状回復費・ACクリーニング代、ペット飼育時(敷金1ヶ月積増:退去時償却1ヶ月)、鍵交換代は1シリンダー交換の場合の料金、鍵渡しは1本のみの場合あり、CATV有、内見予約・お申込み・物件詳細はITANDIにてご確認をお願い致します 海外審査不可、駐車場・バイク置場・駐輪場:空き状況・費用等要確認
|
| エネルギー消費性能 |
- |
断熱性能 |
- |
| 目安光熱費 |
- |
|
|
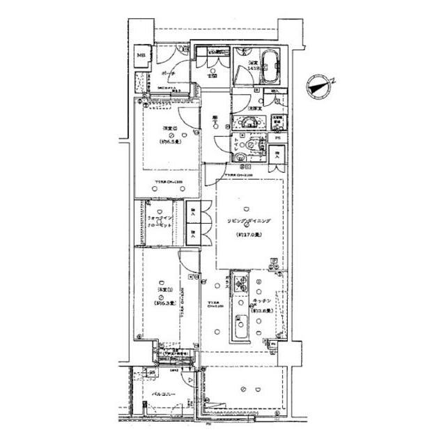
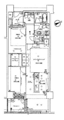
| 間取り |
2LDK(洋室6.5・洋室6.3・LD17・K3.8) |
主要採光面 |
東 |
| 専有面積 |
77.14㎡ |
階建/階 |
地上15階地下2階建/9階 |
| 築年月 |
2003年11月(築22年3ヶ月) |
建物構造 |
SRC |
| 総戸数 |
131戸 |
|
|
| 駐車場 |
空無 |
バイク置き場 |
有 |
| 駐輪場 |
有 500円/月 |
ペット |
小型犬可 猫可 |
| 契約期間 |
2年 |
現況 |
空家 |
| 条件等 |
- |
入居可能時期 |
即時 |
| 更新料 |
新賃料 1ヶ月 |
|
|
| 物件番号 |
1145729110 |
|
|
| 情報公開日 |
2025/08/25 |
次回更新予定日 |
2026/01/24 |
※「-」と表示されている項目については、情報提供会社にご確認ください。
情報提供会社
(株)雄心不動産
- 交通:
- 京王井の頭線/井の頭公園 徒歩1分
- 住所:
- 東京都三鷹市井の頭3丁目31-3
- TEL:
- 0422-45-3000
- FAX:
- 0422-47-1422
- 所属団体など:
| (公社)東京都宅地建物取引業協会会員 |
| (公社)首都圏不動産公正取引協議会加盟 |
- 取引態様:
- 仲介
- 免許番号:
- 東京都知事免許(15)第18725号
メールでお問い合わせ