物件詳細情報
| 交通 |
京王井の頭線 / 永福町駅 徒歩11分 |
| その他交通 |
東京メトロ丸ノ内方南支線 / 方南町駅 徒歩13分
|
| 所在地 |
東京都杉並区大宮1丁目 |
| 物件種目 |
新築貸マンション |
| 賃料 |
27.3万円 |
管理費等 |
15,000円 |
| 敷金 / 保証金 |
27.30万円/なし |
礼金 |
なし |
| 敷引 |
- |
保証金償却 |
- |
| その他一時金 |
清掃費:77,000円、 エアコン清掃費:33,000円 |
保険等 |
加入要 / 2年間 16,550円 |
| 維持費等 |
- |
| 建物名・部屋番号 |
コンフォリア・リヴ永福町 104 |
| 設備 |
宅配BOX システムキッチン エアコン2台以上 床暖房 バス・トイレ別室 室内洗濯機置場 オートロック モニタ付インターホン ディンプルキー 食器洗浄乾燥機 浄水器 グリル エレベーター 浴室乾燥機 追焚機能 洗面所独立 インターネット使用料無料 CATV CS BS端子 温水洗浄便座 |
| 備考 |
賃貸保証等:加入要 エポスカード(RP) 保証料:賃料等の50%(最低2万)、月額保証料:賃料等の1%(更新料無) ■ペット飼育可(大型犬2匹 または猫2匹迄) ◆指定保証会社利用必須※一部法人契約除く・敷金積増1ヶ月◆礼金0ヶ月※1年以内解約時賃料等1ヶ月分違約金有◆退居時、エアコン清掃費・室内清掃費かかります◆禁止事項(楽器演奏・SOHO利用)◆ペット飼育時敷金1ヶ月積増・使用細則遵守・大型犬2匹または猫2匹迄◆ご入居時指定引越し会社有
|
| エネルギー消費性能 |
- |
断熱性能 |
- |
| 目安光熱費 |
- |
|
|
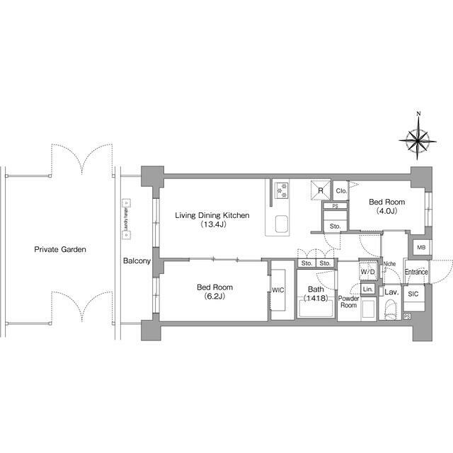
| 間取り |
2LDK(LDK13.4 洋6.2 洋4) |
主要採光面 |
西 |
| 専有面積 |
55.64㎡ |
階建/階 |
6階建/1階 |
| 築年月 |
2026年2月 |
建物構造 |
RC |
| 総戸数 |
41戸 |
|
|
| 駐車場 |
なし |
バイク置き場 |
- |
| 駐輪場 |
- |
ペット |
小型犬可 猫可 その他:大型犬2匹または猫2匹迄(敷金 |
| 契約期間 |
2年 |
現況 |
未完成 |
| 条件等 |
- |
入居可能時期 |
予定 2026年03月上旬 |
| 更新料 |
新賃料 1ヶ月 |
|
|
| 物件番号 |
1171903721 |
|
|
| 情報公開日 |
2026/01/16 |
次回更新予定日 |
2026/02/26 |
※「-」と表示されている項目については、情報提供会社にご確認ください。
情報提供会社
(株)雄心不動産
- 交通:
- 京王井の頭線/井の頭公園 徒歩1分
- 住所:
- 東京都三鷹市井の頭3丁目31-3
- TEL:
- 0422-45-3000
- FAX:
- 0422-47-1422
- 所属団体など:
| (公社)東京都宅地建物取引業協会会員 |
| (公社)首都圏不動産公正取引協議会加盟 |
- 取引態様:
- 仲介
- 免許番号:
- 東京都知事免許(15)第18725号
メールでお問い合わせ